Vendu
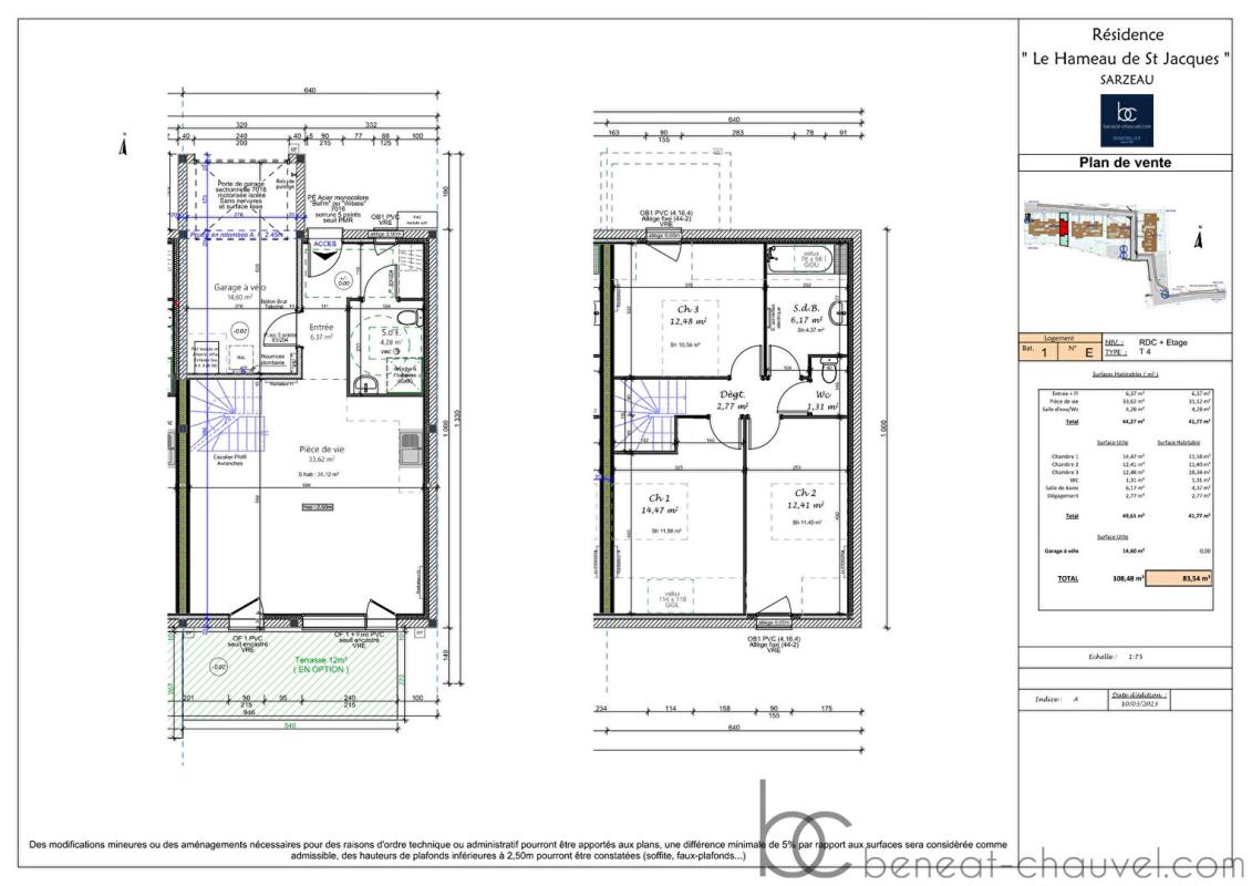
SARZEAU Maison neuve T4 – 83 m² habitable – 170 m² Terrain
A proximité immédiate de la plage et proche des commerces, une maison neuve sur un terrain de 170 m², comprenant :
– Au rez-de-chaussée : entrée, pièce de vie avec cuisine, salle d’eau avec wc.
– A l’étage : dégagement, trois chambres, wc et salle de bain.
Garage.
Belles prestations.
Copropriété de 4 bâtiments formant 17 Maisons mitoyennes avec jardin privatif.
Maison vendue achevée. Construction en cours et prêt à vivre en Juin 2025. Frais de notaire réduit
LE TOUR DU PARC Maison 5 pièces 99 m²