Vendu
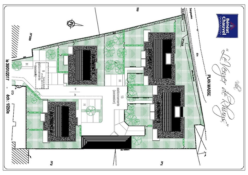
SARZEAU CENTRE. LE VERGER DE RHUYS. Appartement neuf. Prix de lancement !
Emplacement et environnement de 1er choix. Dans une résidence à taille humaine composée de quatre îlots d’une dizaine de logements sur 3 niveaux, avec ascenseur : Au 1er étage, un appartement de type 4 pièces de 82 m² env. comprenant entrée, grand séjour/cuisine exposé SUD, 2 chambres, 2 salles d’eau avec WC. Balcon. Frais de notaire réduit. Parking aérien ou en sous-sol et/ou Garage aérien ou en sous-sol en sus. Livraison prévue 1er Trimestre 2019. Éligible au dispositif de réduction d’impôts PINEL
Prix FAI : 296 000 euros
BADEN Maison 9 pièces 180 m²