Vendu
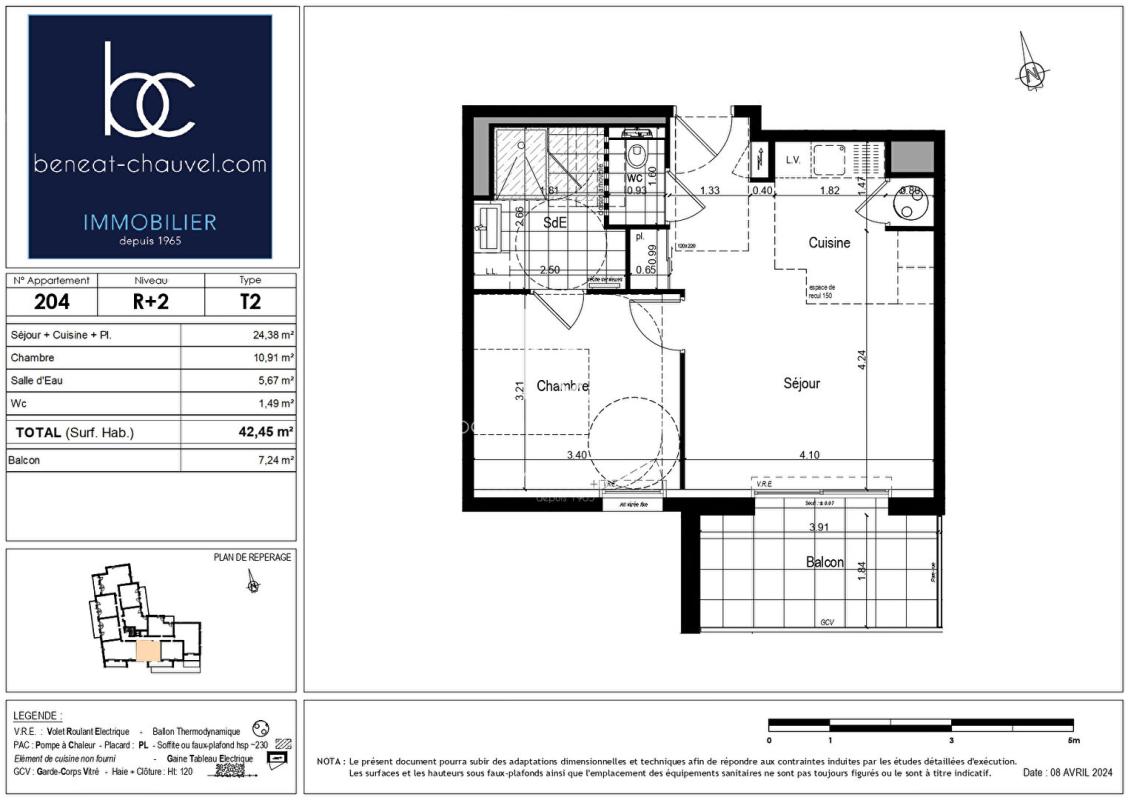
Appartement neuf SARZEAU Centre
En coeur de ville, au sein d’une résidence intimiste de 25 appartements et 7 maisons
individuelles, un appartement de type 2 composé d’un séjour-cuisine ouvrant sur un balcon, W.C. séparé, salle d’eau et chambre. Parking couvert inclus.
Vendu en état futur d’achèvement. Frais de notaire réduits. Livraison prévue 3ème trimestre 2027.
Par ailleurs, cet investissement vous permet de bénéficier de différents dispositifs d’aides à l’accession et de défiscalisation comme les dispositifs PINEL et LMNP.
LE TOUR DU PARC Maison 4 pièces 75 m²