Vendu
Terrain à bâtir viabilisé Sarzeau Ocean. Secteur privilégié à deux pas de la plage
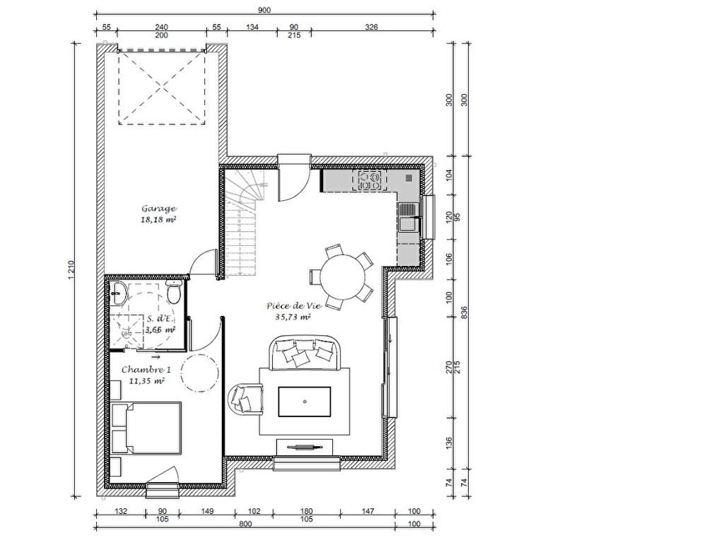
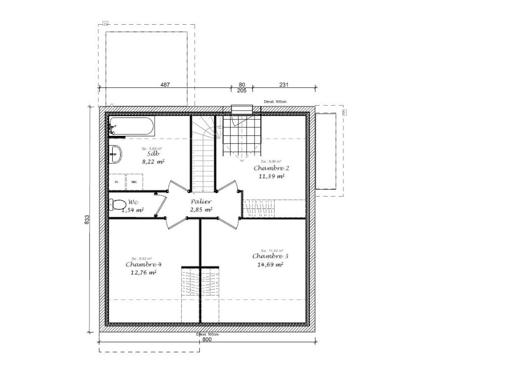
Sarzeau Ocean – 400m plage abritée – possibilité mouillage – dans environnement préservé – terrain de 410 m² viabilisé. Terrain vendu avec un permis de construire une maison de type 5 pièces comprenant au rez-de-chaussée Séjour Cuisine, Chambre, salle d’eau et WC. A l’étage trois chambres, salle de bains et WC. Garage attenant. Vous achetez le terrain et signez un contrat de construction de maison individuelle. Les taxes d’aménagement et de raccordement sont estimées à 4990 euros et la dommage ouvrage à 1900 euros. Livraison prévue au printemps 2021.
Prix FAI : 99 000 euros dont 4.98 % honoraires TTC à la charge de l’acquéreur.
SARZEAU Terrain 443 m²