Vendu
ARZON L’ECUME DE MER Programme neuf
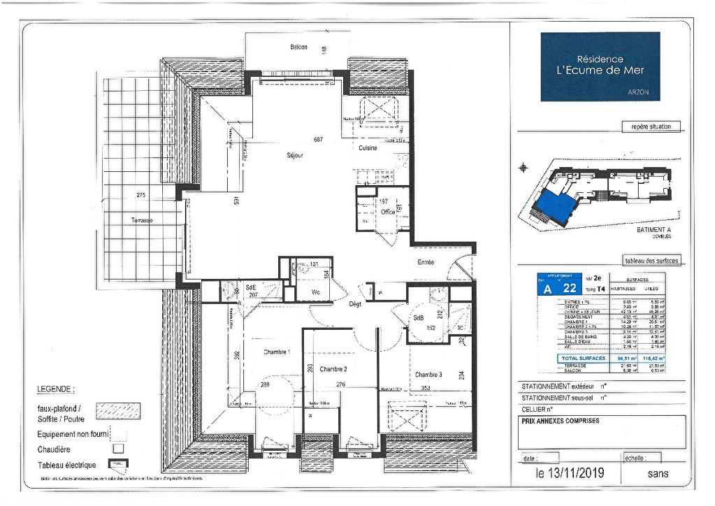
Arzon, emplacement et environnement de 1er choix à 300 m centre bourg et Port Crouesty. Dans une résidence exposée sud, à taille humaine avec ascenseur, de 24 logements, au 2ème et dernier étage, bel appartement de type 4 comprenant, entrée avec placard, office, séjour avec coin cuisine, dégagement, 3 chambres dont une avec placard, 2 salles d’eau et WC.
Balcon et terrasse. Parking aérien ou garage en sous sol en sus.
Prestations de qualité. Frais de notaire réduits. Livraison prévue 3ème trimestre 2021.
Prix : 435 000 euros
ARZON Appartement 4 pièces 42 m²