Vendu
ARZON L’OCEA Programme neuf
ARZON commune entre Océan et Golfe du Morbihan idéale pour résidence principale et secondaire. A la pointe de la Presqu’Ile de Rhuys, vous y trouverez de jolies plages, un port de plaisance et un port typique et plus de 130 commerces et services.
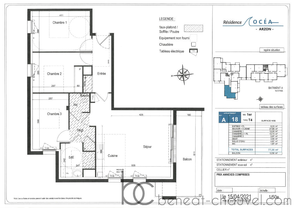
Emplacement et environnement de 1er choix à 200 m centre bourg et Port Crouesty pour cette résidence de 41 logements avec ascenseur, au 1er étage, bel appartement de type 4 comprenant entrée avec placard, séjour, coin cuisine, 3 chambres dont une avec placard, dégagement, salle d’eau et WC indépendant.
Balcon.
Cellier, parking ou garage en sous sol en sus.
Prestations de qualité. Frais de notaire réduits. Livraison prévue 3ème trimestre 2023.
Prix : 355 000 euros
ARZON Appartement 2 pièces 46 m²