Acheter
354 000 € FAI
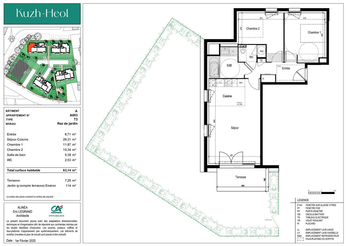
ARZON PLAGES, Appartement T3
ARZON, situation idéale pour cet appartement T3 situé au rez de chaussée de la résidence. Il comprend un hall d’entrée avec placard, séjour-salon avec cuisine ouverte aménagée et personnalisable, dégagement desservant deux chambres, salle de bains et WC séparé. Jardin clos de 114 m², agrémenté d’une terrasse exposée sud et place de parking aérienne privative.
A seulement 5 minutes en vélo du port, à proximité des paysages côtiers, des plages et des sentiers de randonnée, profitez pleinement de la douceur de vivre du Golfe du Morbihan.
La résidence, labellisée RE2020, répond aux dernières exigences énergétiques et environnementales, avec une végétalisation soignée favorisant la biodiversité.
Vente en état futur d’achèvement. Démarrage des travaux prévu au 4e trimestre 2025 pour une livraison au 4e trimestre 2027. Frais de notaire réduits.
Ne manquez pas cette opportunité unique, contactez-nous dès maintenant !
Prix : 354 000 euros
Les informations sur les risques auxquels ce bien est exposé sont disponibles sur le site Géorisques : www.georisques.gouv.fr
ARZON Appartement 2 pièces 42 m²