Vendu
ARZON L’OCEA Programme neuf
ARZON commune entre Océan et Golfe du Morbihan idéale pour résidence principale et secondaire. A la pointe de la Presqu’Ile de Rhuys, vous y trouverez de jolies plages, un port de plaisance et un port typique et plus de 130 commerces et services.
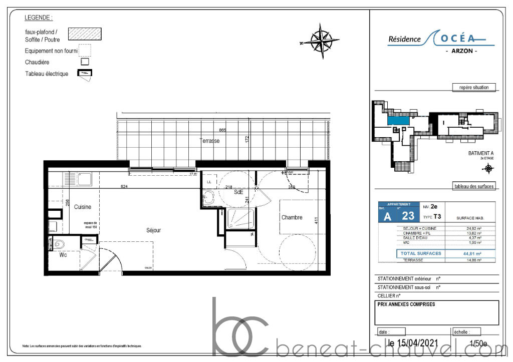
Emplacement et environnement de 1er choix à 200 m centre bourg et Port Crouesty pour cette résidence de 41 logements avec ascenseur, au 2ème et dernier étage, bel appartement de type 2 comprenant séjour, coin cuisine, chambre avec placard, salle d’eau et WC indépendant.
Terrasse.
Cellier, parking ou garage en sous sol en sus.
Prestations de qualité. Frais de notaire réduits. Livraison prévue 2ème trimestre 2023.
Prix : 195 000 euros
SURZUR Maison 5 pièces 130 m²