Vendu
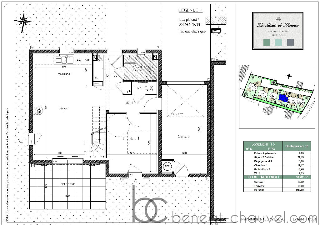
ARZON Maison 5 pièces 92.58 m2
Entre le MONTENO et port typique de PORT NAVALO, belles prestations pour cette maison neuve comprenant
Au rez de chaussée, entrée avec placards, séjour cuisine donnant sur terrasse exposée SUD, dégagement, chambre, salle d’eau et W.C.
A l’étage, 3 chambres dont une avec placards, dégagement, salle d’eau et W.C.
Garage et 3 parkings extérieurs.
Terrain de 288m²
A proximité des magnifiques plages du golfe et des sentiers côtiers.
Livraison programmée fin du deuxième semestre 2022.
Prix : 529 000 euros
ARZON Maison 5 pièces 110 m²